Używamy ciasteczek

Strona dla prawidłowego działania wymaga plików cookies. Szczegóły ich wykorzystania znajdziesz w Polityce Prywatności.

Opracowania Techniczne

Program Przedmiotu


Przedmiot „Opracowania Techniczne” prowadzony w ramach zajęć w pracowniach Projektowania Wnętrz, Projektowania Wystaw, Pracowni Detal Miasta i w II Pracowni Projektowania Architektonicznego wiąże się nierozłącznie z programami tych pracowni. W ramach przedmiotu przewidziano konsultacje zagadnień wykonawczych, rysunków, makiet, itp. a w rezultacie opracowanie własnego projektu (semestralnego, dyplomowego). Umiejętności studentów oparte są na wcześniejszych kursach budownictwa, rysunku technicznego, ergonomii (rok I i II studiów licencjackich) oraz wykładach i wizytach studyjnych.

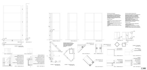
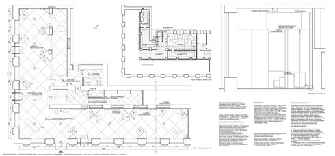
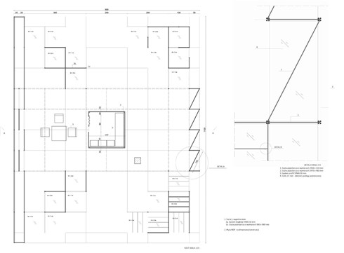
Zakres typowego opracowania to dowodzące możliwości realizacyjnych własnego projektu rysunki rzutów, przekrojów (w skali 1:50, 1:20), detale wykonawcze, krótki opis techniczny. Przedmiot prowadzony jest dla studentów II i III roku studiów licencjackich oraz I i II roku studiów magisterskich.