Zajęcia z przedmiotu Budownictwo na pierwszym oraz drugim roku studiów mają na celu zaznajomienie studentów z podstawami rysunku technicznego, konstrukcji i elementów budowlanych w budynkach oraz poszerzenie tej wiedzy o elementy prac wykończeniowych oraz instalacyjnych, ze szczególnym uwzględnieniem wnętrz. Zagadnienia ergonomiczne przedstawiane są w praktyce – projektowaniu schodów, balustrad, łazienki dla niepełnosprawnych.
Wykłady i ćwiczenia służą nauce umiejętności korzystania z materiałów i wyrobów budowlanych w celu uzyskania zamierzonych efektów przestrzennych i estetycznych. Szczególnie akcentowany jest trwający obecnie dynamiczny rozwój przemysłu i technologii budowlanych – potraktowane nie tylko jako zespół rozwiązań mających spełnić wymogi techniczne i użytkowe budynku, ale też jako niewyczerpane źródło inspiracji i pole poszukiwań twórczych. Ważne jest uświadomienie studentom, że stosowanie różnych wyrobów budowlanych nie może być przypadkowe, lecz musi wynikać z intencji plastycznych projektanta. Wybór materiału jest składnikiem procesu twórczego, podobnie jak rozwiązanie funkcji i poszukiwanie nastroju wnętrza. Ważnym elementem kształcenia jest nauka poprawnego kreślenia rysunków i rysowania odręcznego detali oraz pisanie opisów technicznych.
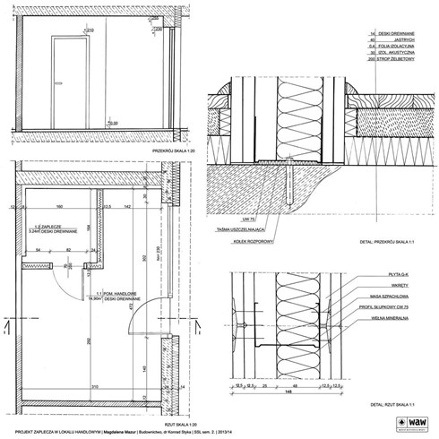
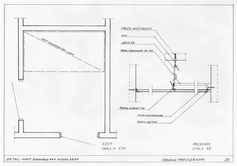
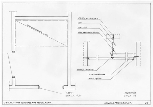
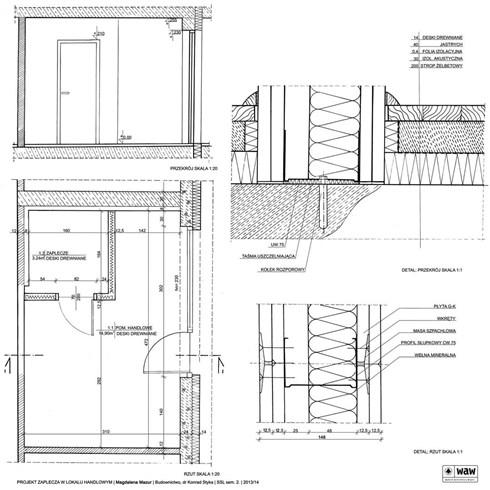
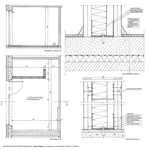
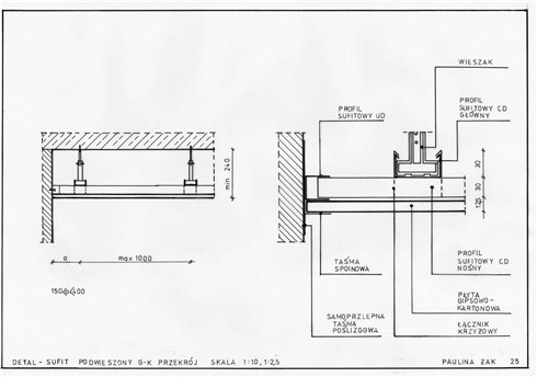
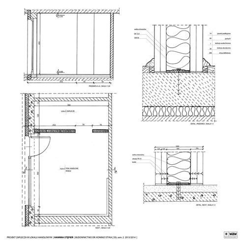
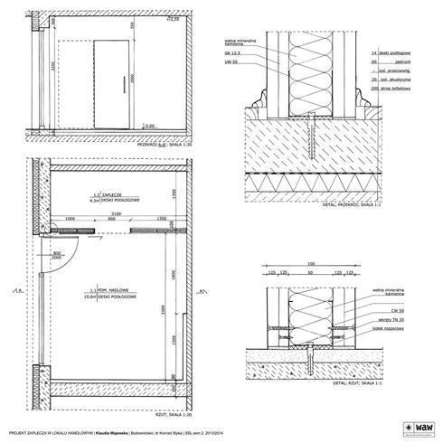
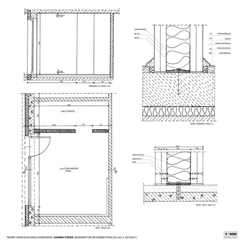
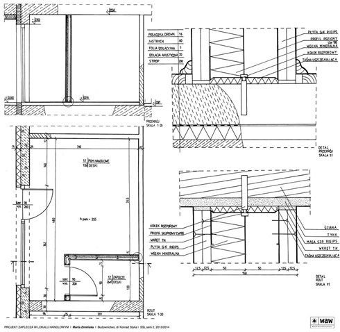
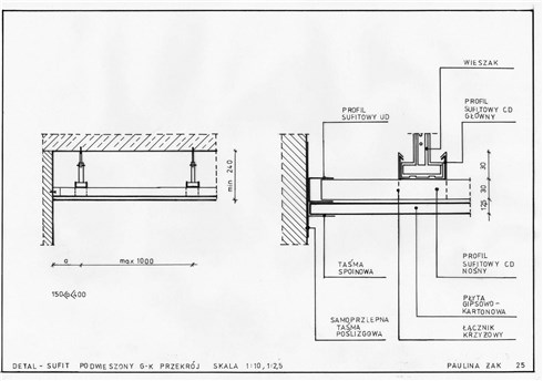
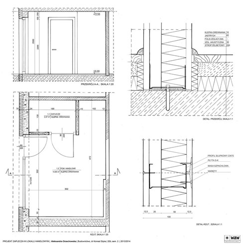
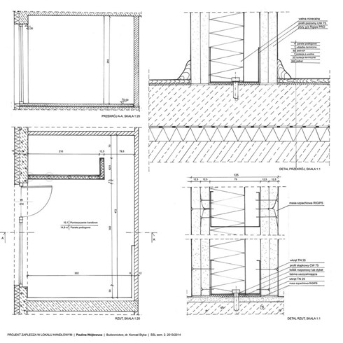
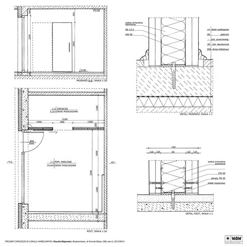
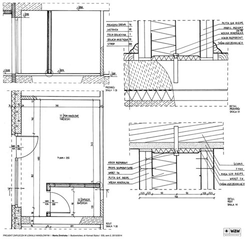
Wymagana jest podstawowa znajomość przepisów budowlanych, Polskich Norm oraz zasad sporządzania dokumentacji, z uwzględnieniem wymaganych uzgodnień i uwarunkowań wynikających z ochrony zabytków. Zakres typowego opracowania: rysunki rzutu, przekroju w skali 1:20, detale budowlane przedstawione na rysunkach, krótki opis techniczny.