Używamy ciasteczek

Strona dla prawidłowego działania wymaga plików cookies. Szczegóły ich wykorzystania znajdziesz w Polityce Prywatności.

Pracowania Projektowania Architektonicznego

Program Pracowni

Zajęcia w Pracowni mają zapoznać studentów z podstawami projektowania architektonicznego w zakresie niezbędnym dla studenta Wydziału Architektury Wnętrz Akademii Sztuk Pięknych. Program ma za zadanie rozwijać u studenta umiejętność kreatywnego i logicznego myślenia projektowego, opartego na uzdolnieniach w zakresie wyobraźni przestrzennej i wrażliwości artystycznej. Program przekazuje podstawy warsztatu pracy architekta, zapoznaje studentów z problemami projektowania dla użytkownika indywidualnego – przestrzeń mieszkalna i zbiorowego – na podstawie niewielkich obiektów użyteczności publicznej oraz wykłady z propedeutyki projektowania.

Szczegółowe problemy poruszane w trakcie pracy dydaktycznej

  • warsztat pracy architekta i wybrane elementy obowiązującego prawa budowlanego
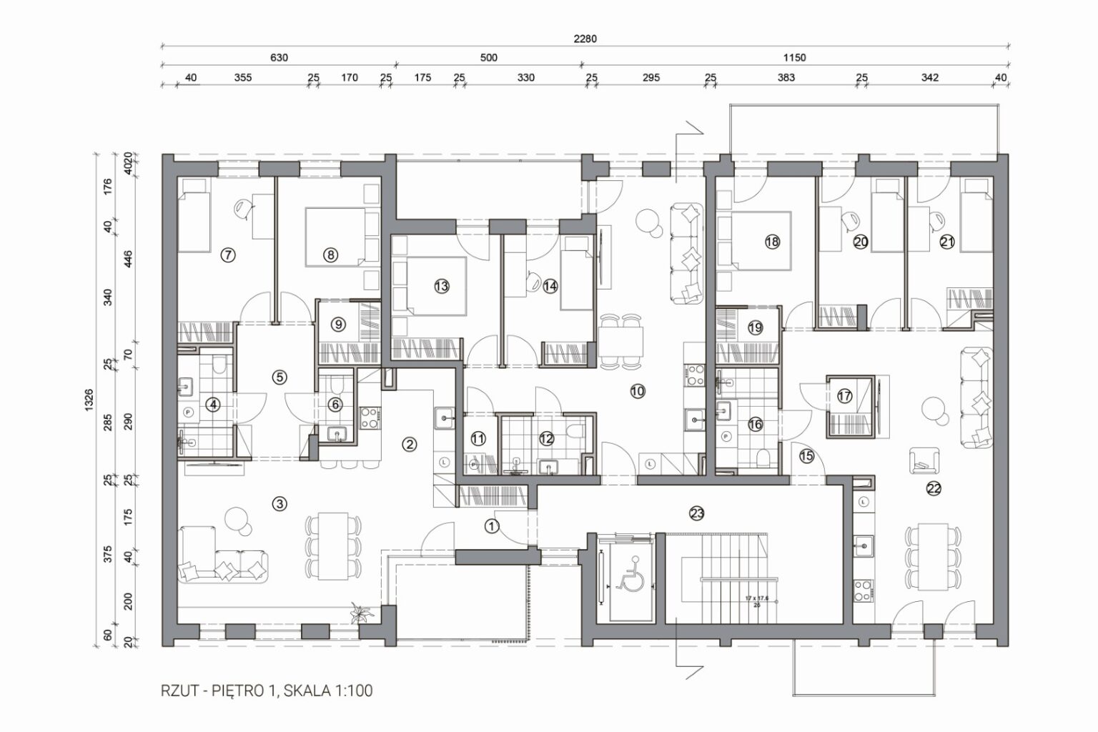
  • ergonomia i układ funkcjonalno-przestrzenny minimalnej przestrzeni mieszkalnej
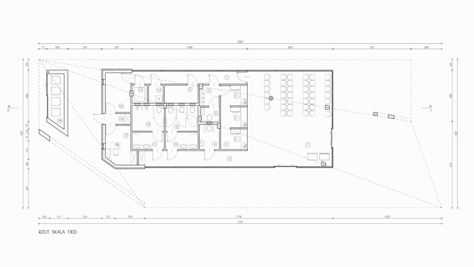
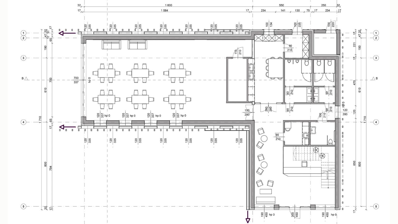
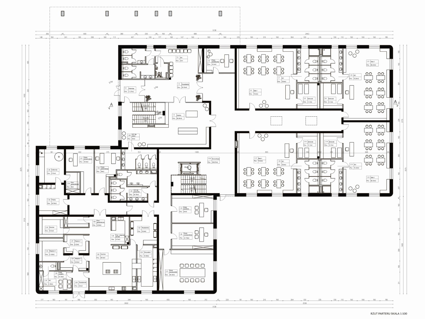
  • układ funkcjonalno-przestrzenny wybranych prostych obiektów użyteczności publicznej
  • podstawy kompozycji przestrzennej
  • podstawowe rozwiązania konstrukcyjno-materiałowe w kontekście projektowanej bryły
  • powiązanie wnętrza z zewnętrzem ( elementy otoczenia obiektu)
  • umiejętność wpisania obiektu w otaczający pejzaż – analiza stanu z poszanowaniem cech istniejącego pejzażu kulturowego

Forma zajęć

Zajęcia prowadzone metoda korektową z uwzględnieniem indywidualnych możliwości każdego studenta.

Korekta – dialog bezpośredni pedagoga ze studentem dot. studenckiej projektowej pracy semestralnej ( korekta błędów, analiza zaproponowanych rozwiązań, proponowanie rozwiązań alternatywnych zgodnych z kierunkiem myślenia studenta, werbalne pobudzanie wyobraźni)

Przewidziano klauzury i okresowe przeglądy zaawansowania prac ( 2 przeglądy w semestrze) oraz wykłady z propedeutyki projektowania.